4 Bay Vault Style Morgue Cooler – Model 1070-4MBE
4 Bay Vault Style Morgue Cooler – Model 1070-4MBE
Heavy-Duty Design for Professional Facilities
The Four Body Morgue Style Cooler is a robust, self-contained refrigeration unit engineered for performance and reliability. Designed with a top-mounted, freezer-grade refrigeration system, this cooler offers efficient and consistent temperature management for professional decedent storage.
The unit features four individual doors and a smooth, telescopic rail system for ergonomic access to each bay. Proudly engineered and built in our Tennessee facility, this cooler is a durable, space-efficient solution for hospitals, morgues, and funeral homes.
General Information
-
Product Name: Four Body Morgue Style Cooler
-
Capacity: Four Bodies
-
Drawing Number: K_as4doorCOOL
-
Note: All dimensions are in inches and are for reference only.
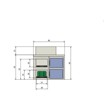
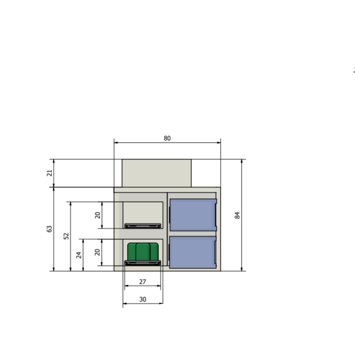
Overall Dimensions (Inches)
-
Overall Width: 80 inches
-
Overall Depth: 97 inches
-
Overall Box Height: 84 inches
Component Dimensions (Inches)
-
Refrigeration Unit Height: 21 inches
-
Height of Top Doors Section: 24 inches
-
Height of Bottom Doors Section: 20 inches
-
Height from Floor to Bottom Tray: 35 inches
Component Specifications
-
Refrigeration System: Freezer 208/230 VAC
-
Doors: Features a Top Door and a Bottom Door configuration.
-
Tray System: Includes a Telescopic Rail System.
-
Body Trays: The unit is designed to accommodate two different stainless steel (SS) body tray sizes:
-
Size 1: 78" x 27"
-
Size 2: 78" x 23"
-
Key Features
-
USA-Made Craftsmanship – Fully fabricated and assembled in Tennessee with a focus on durability and performance.
-
Top-Mounted Refrigeration – A powerful, freezer-grade 208/230 VAC refrigeration unit is mounted on top of the cooler, saving floor space and providing efficient cooling.
-
Stainless Steel Construction – Features a stainless steel exterior and interior, along with durable SS Body Trays, for maximum longevity and easy sanitation.
-
Telescopic Rail System – Each bay is equipped with a smooth, telescopic slide-out rail system for easy and ergonomic access.
-
Four-Door Configuration – Four individual doors (Top Door and Bottom Door) ensure temperature stability by allowing access to one bay at a time.
-
High-Density Insulation – Energy-efficient, foamed-in-place urethane insulation provides superior temperature retention.
Technical Specifications (Per Engineering Drawing K_as4doorCOOL)
-
Capacity: Four Bodies
-
Exterior Dimensions (Inches): 80" W x 97" D x 84" H (Box Only)
-
Exterior Dimensions (Feet): Approx. 6' 8" W x 8' 1" D x 7' 0" H (Box Only)
-
Body Tray Dimensions: Accommodates SS Body Trays 78" long and up to 27" wide.
-
Construction: Stainless Steel Exterior, Interior, and Trays.
-
Refrigeration: Top-Mounted, Freezer-Grade Unit
-
Electrical: 208/230 VAC
-
Door System: Four (4) individual doors in a 2x2 configuration (Top Door, Bottom Door).
Industry-Leading Warranty
-
15-Year Structural Panel/Frame Warranty
-
5-Year Door Warranty
-
1-Year Parts & 90-Day Labor on Refrigeration System
Add Extended Warranty Coverage for Peace of Mind
Protect your investment with one of our Extended Care Plans — perfect for facilities where uptime is critical.
-
Option 1: No Extended Care – “We’ll Take the Risk” Included with every purchase. Enjoy the standard warranty coverage listed above. After the warranty period, all repairs are out-of-pocket.
-
Option 2: 1-Year Extended Warranty – Parts & Labor Add 12 full months of worry-free protection beyond the standard warranty. Covers mechanical breakdowns, labor, and refrigeration support.
-
Option 3: 2-Year Extended Warranty – Maximum Protection Get 2 full years of total coverage — our most popular plan. From diagnostics to repairs, we’ve got your back.
Add your plan at checkout or call us at 1-888-792-9315 to customize your protection.
Installation & Setup
-
Ready to Use: This unit ships fully assembled and ready for operation.
-
Placement: Must be installed on a solid, level floor. Requires adequate ceiling clearance to accommodate the 21-inch height of the top-mounted refrigeration unit and to ensure proper air circulation.
-
Electrical: Requires a 208/230 VAC electrical connection. All electrical work must be performed by a licensed electrician.
-
Delivery: Freight delivery requires inspection for any potential shipping damage before signing the delivery receipt.
Get a Quote
-
Phone: 1-888-792-9315
-
Email: cool@mymortuarycooler.com
🚚 Delivery & Installation Options
Choose the delivery and assembly method that best fits your facility's needs.
Option 1: Standard Delivery (Customer Unload & Assembly)
Your un-assembled, flat-packed cooler will be delivered to your facility's address via freight carrier. You are responsible for having a forklift and/or appropriate personnel to unload the shipment and move it inside.
This option is ideal for customers who have an experienced contractor or an in-house team to handle the complete assembly and installation.
-
Price: Included in Base Price
Option 2: Premium On-Site Assembly
Let our expert team handle the heavy lifting and assembly. This premium service includes unloading the shipment, moving it inside your space, and the complete on-site assembly of the cooler box, panels, and door. We ensure your unit is built to exact specifications, saving you time and labor.
This option is perfect for facilities that want a professionally built structure ready for their chosen technicians. You will only need to arrange for a licensed professional to handle the final refrigeration and electrical connections.
-
Price: + $1,500
American Mortuary Coolers – your trusted source for American-made mortuary equipment, embalming stations, and cadaver lifts. Proudly serving all 50 states with affordable financing, nationwide delivery, and white glove installation.
At American Mortuary Coolers, we make purchasing professional mortuary equipment simple and affordable with secure payment options and flexible financing programs available to facilities across all 50 states. Whether you’re investing in a mortuary cooler, embalming station, cadaver lift, or funeral home equipment, our goal is to make ownership accessible and hassle-free. We accept all major payment methods and partner with leading financial institutions to provide llow-interest financing and fast approval times— helping you upgrade your facility without financial strain.
Premium American-Made Mortuary Equipment – Built for Professionals, Shipped Nationwide
American Mortuary Coolersis the trusted nationwide manufacturer ofmortuary coolers, embalming stations, cadaver lifts, and funeral home equipment, allcrafted in the USAfor unmatched quality and performance. Each unit is built withheavy-duty stainless steel construction, engineered fordurability, sanitation, and reliabilityin every professional setting — fromfuneral homes and hospitals to medical examiners and universities. Withaffordable financing,white glove installation, andno forklift required delivery, our mortuary solutions are designed to make setup simple and service seamless. We proudly offernationwide shipping, ensuring every facility across all50 statesreceives the precision, craftsmanship, and value that defineAmerican Mortuary Coolers.

Best Price Guarantee on American-Made Mortuary Equipment
We guarantee the lowest prices on mortuary coolers, embalming tables, cadaver lifts, and funeral home equipment — all proudly made in the USA and shipped nationwide.
Over 16 Years in Business – Trusted American Mortuary Equipment Experts
20+ Years of Direct Industry Experience • Physical Showroom • Nationwide Service
With over 16 years in business and more than 20 years of direct mortuary industry experience, American Mortuary Coolers has earned a reputation as one of the nation’s most trusted mortuary equipment manufacturers and suppliers. We proudly serve funeral homes, hospitals, coroners, universities, and medical facilities with American-made mortuary coolers, embalming stations, cadaver lifts, and morgue refrigeration systems that deliver superior quality, reliability, and craftsmanship.
Our commitment to precision, performance, and service excellence has positioned us as a leader in professional mortuary equipment — trusted by thousands of facilities across all 50 U.S. states.
Extend the Power of Your Facility with the Industry Leader in Mortuary Design & Equipment
At American Mortuary Coolers, we go beyond equipment — we build seamless extensions of your funeral home, mortuary, or morgue. From state-of-the-art mortuary coolers to precision-engineered stretchers and embalming workstations, our products are designed to enhance efficiency, elevate professionalism, and expand your facility’s capabilities. Partner with the premier source trusted nationwide for craftsmanship, innovation, and design excellence.
Buy Mortuary Equipment from the Industry’s Most Trusted Source
As a proud division of www.MortuaryEquipment.com, we provide the highest-quality mortuary equipment built for performance, reliability, and long-term value. From professional-grade mortuary coolers and stretchers to embalming stations and body lifts, every product is engineered to meet the demanding standards of funeral homes, mortuaries, and medical examiners nationwide. When you buy mortuary equipment from us, you’re investing in American craftsmanship and design excellence backed by decades of industry leadership.
#1 Authority in Aquamation & Body Composting Equipment
As the leading authority inaquamation and body composting technology, we provide advanced cooling and ancillary systems engineered to support the future of eco-friendly death care. Our precision-built mortuary coolers, processing equipment, and facility design solutions are trusted by innovators and environmental leaders nationwide. When it comes to sustainable disposition systems,American Mortuary Coolersstands as the #1 source for reliability, performance, and expertise.


