12 Bay Vault Style Morgue Cooler – Model 1070-12MB
12 Bay Vault Style Morgue Cooler – Model 1070-12MB
High-Capacity Storage for Demanding Facilities
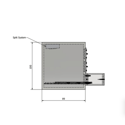
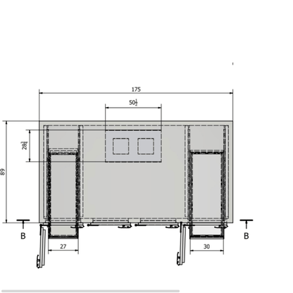
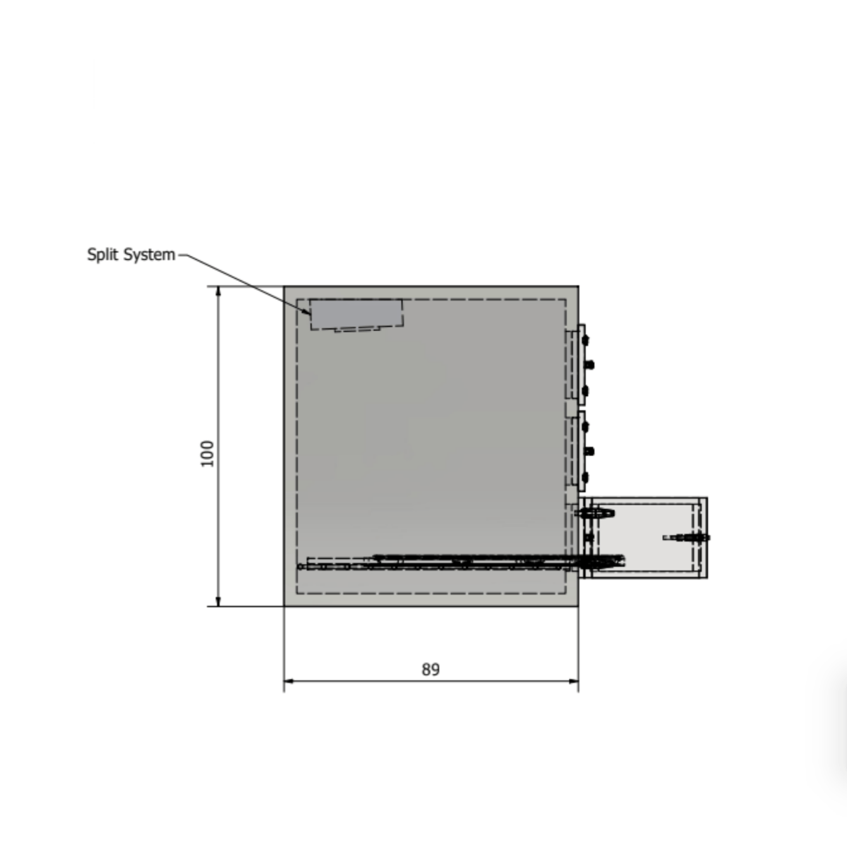
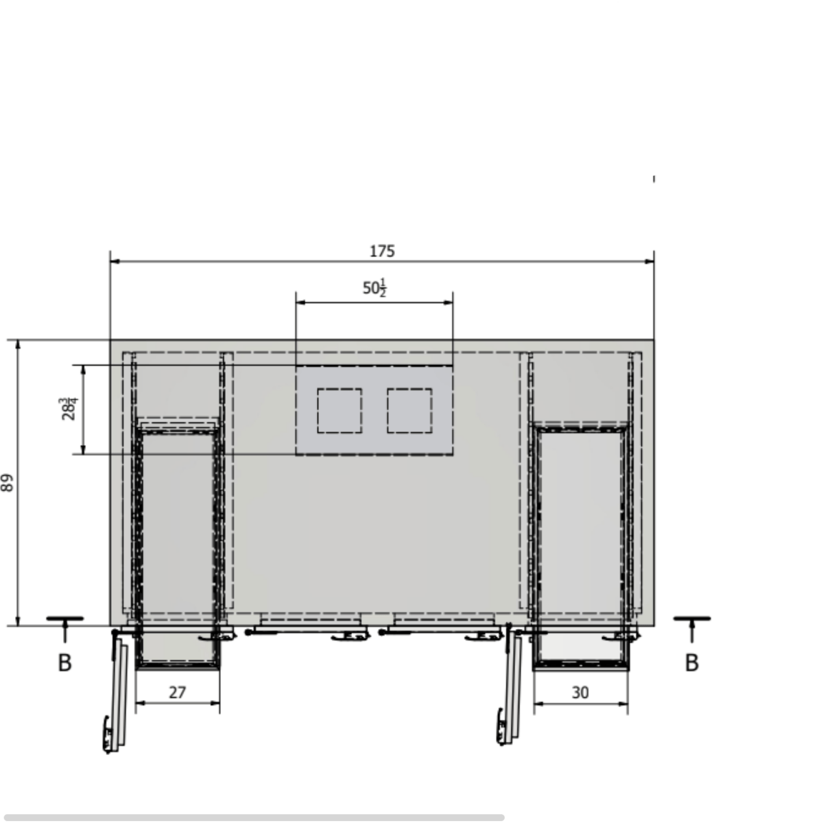
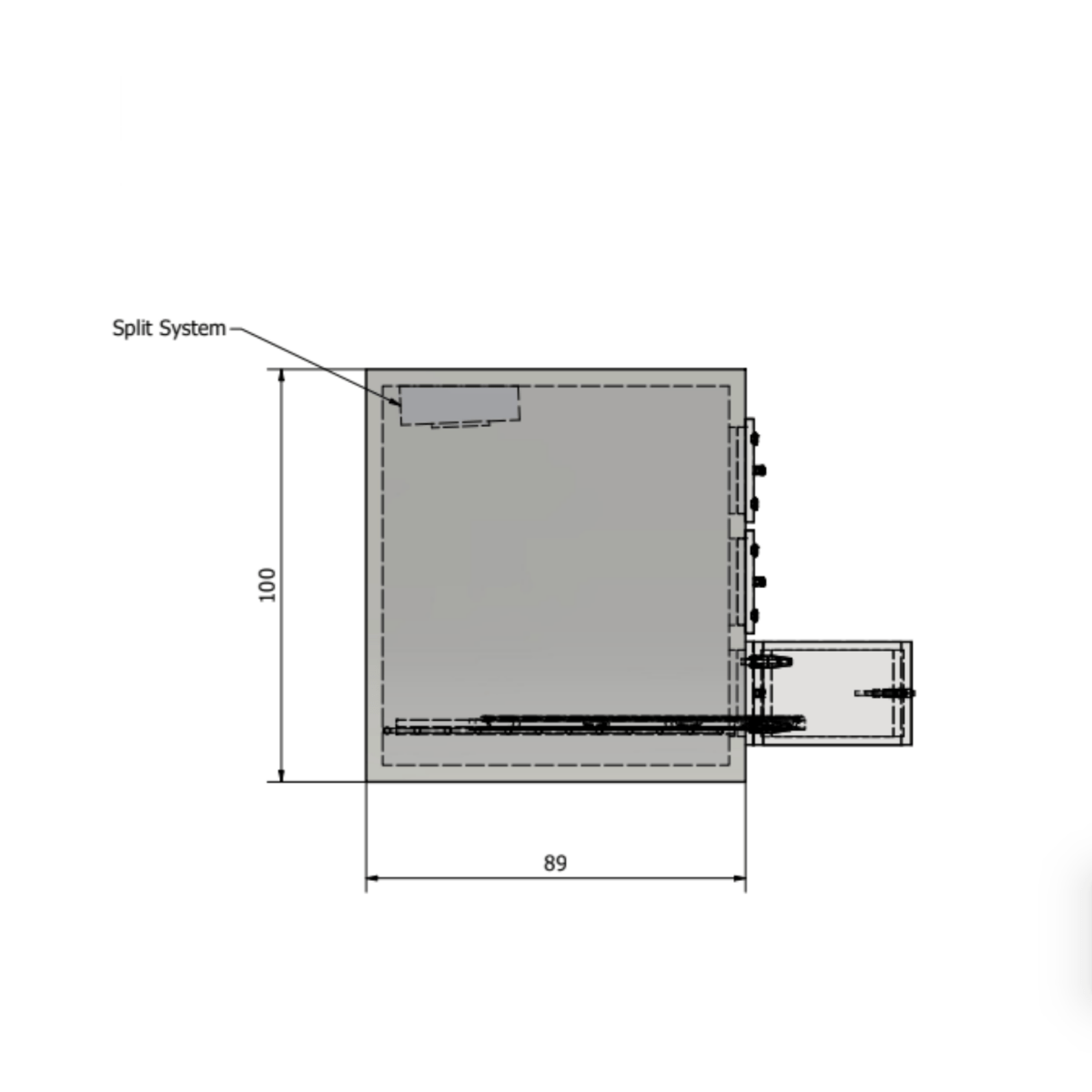
The 12 Bay Vault Style Morgue Cooler – Model 1070-12MB is a high-capacity refrigeration unit engineered for large, high-volume facilities. This robust cooler features a horizontal 4-wide by 3-high configuration, providing maximum storage density. The efficient side-mount refrigeration and durable construction make it a reliable workhorse for busy hospital morgues, county medical examiners, and large-scale funeral homes.
Proudly engineered and built in our Tennessee facility, this cooler is a turnkey solution for professional mortuary preservation.
Key Features
-
USA-Made Craftsmanship – Fully fabricated and assembled in Tennessee with a focus on durability and performance.
-
High-Capacity 4x3 Configuration – The twelve-bay layout maximizes storage for high-volume needs.
-
Self-Contained Refrigeration – A powerful, side-mounted, air-cooled refrigeration system is fully integrated for straightforward installation and service.
-
4” High-Density Urethane Insulation – Energy-efficient, foamed-in-place insulation ensures stable temperature control.
-
Stainless Steel Slide-Out Tray System – Each bay is equipped with a removable, stainless steel body tray on a telescopic, ball-bearing slide system for smooth and ergonomic access.
-
Secure Vault-Style Doors – Twelve individual, insulated doors feature heavy-duty locks and magnetic gaskets for a secure and perfect seal.
-
Digital Thermostat – An easy-to-read digital display ensures precise temperature management between 36°F and 40°F.
Technical Specifications
-
Model: 1070-12MB
-
Capacity: 12 Bodies
-
Exterior Dimensions: Approx. 118" W x 97" D x 91" H
-
Construction: Stainless Steel Exterior & Interior
-
Insulation: 4” Foamed-in-Place Urethane
-
Refrigeration: Self-Contained, Side-Mounted System
-
Electrical: 208/230V (Dedicated Circuit Required)
-
Door System: Twelve (12) individual locking doors in a 4x3 configuration.
Perfect For
-
County Morgues & Medical Examiners
-
Metropolitan Hospitals & Medical Centers
-
Large, High-Volume Funeral Homes
-
University Anatomy & Pathology Labs
-
Government & Municipal Facilities
Industry-Leading Warranty
-
15-Year Structural Panel/Frame Warranty
-
5-Year Door Warranty
-
1-Year Parts & 90-Day Labor on Refrigeration System
Add Extended Warranty Coverage for Peace of Mind
Protect your investment with one of our Extended Care Plans — perfect for facilities where uptime is critical.
-
Option 1: No Extended Care – “We’ll Take the Risk” Included with every purchase. Enjoy the standard warranty coverage listed above. After the warranty period, all repairs are out-of-pocket.
-
Option 2: 1-Year Extended Warranty – Parts & Labor Add 12 full months of worry-free protection beyond the standard warranty. Covers mechanical breakdowns, labor, and refrigeration support.
-
Option 3: 2-Year Extended Warranty – Maximum Protection Get 2 full years of total coverage — our most popular plan. From diagnostics to repairs, we’ve got your back.
Add your plan at checkout or call us at 1-888-792-9315 to customize your protection.
FAQ – 12 Bay Morgue Cooler
-
Does this unit ship assembled? Yes, this unit ships fully assembled. Due to its size and weight, please ensure your facility has a clear path and appropriate equipment (such as a heavy-duty forklift) for receiving.
-
What are the electrical requirements? This cooler requires a 208/230V electrical connection on a dedicated circuit, to be installed by a licensed electrician.
-
Can the refrigeration unit be mounted elsewhere? This model is designed with an integrated side-mounted unit. If you require a different refrigeration configuration, such as a remote or top-mounted system, please call us to discuss a custom build.
Installation & Setup
-
Ready to Use: This unit ships fully assembled and ready for final electrical connection.
-
Placement: Must be installed on a solid, level floor capable of supporting the unit's substantial weight.
-
Electrical: Requires a dedicated 208/230V circuit. All electrical work must be performed by a licensed electrician.
-
Delivery: Freight delivery requires inspection for any potential shipping damage before signing the delivery receipt.
Get a Quote
-
Phone: 1-888-792-9315
-
Email: cool@mymortuarycooler.com
American Mortuary Coolers – your trusted source for American-made mortuary equipment, embalming stations, and cadaver lifts. Proudly serving all 50 states with affordable financing, nationwide delivery, and white glove installation.
At American Mortuary Coolers, we make purchasing professional mortuary equipment simple and affordable with secure payment options and flexible financing programs available to facilities across all 50 states. Whether you’re investing in a mortuary cooler, embalming station, cadaver lift, or funeral home equipment, our goal is to make ownership accessible and hassle-free. We accept all major payment methods and partner with leading financial institutions to provide llow-interest financing and fast approval times— helping you upgrade your facility without financial strain.
Premium American-Made Mortuary Equipment – Built for Professionals, Shipped Nationwide
American Mortuary Coolersis the trusted nationwide manufacturer ofmortuary coolers, embalming stations, cadaver lifts, and funeral home equipment, allcrafted in the USAfor unmatched quality and performance. Each unit is built withheavy-duty stainless steel construction, engineered fordurability, sanitation, and reliabilityin every professional setting — fromfuneral homes and hospitals to medical examiners and universities. Withaffordable financing,white glove installation, andno forklift required delivery, our mortuary solutions are designed to make setup simple and service seamless. We proudly offernationwide shipping, ensuring every facility across all50 statesreceives the precision, craftsmanship, and value that defineAmerican Mortuary Coolers.

Best Price Guarantee on American-Made Mortuary Equipment
We guarantee the lowest prices on mortuary coolers, embalming tables, cadaver lifts, and funeral home equipment — all proudly made in the USA and shipped nationwide.
Over 16 Years in Business – Trusted American Mortuary Equipment Experts
20+ Years of Direct Industry Experience • Physical Showroom • Nationwide Service
With over 16 years in business and more than 20 years of direct mortuary industry experience, American Mortuary Coolers has earned a reputation as one of the nation’s most trusted mortuary equipment manufacturers and suppliers. We proudly serve funeral homes, hospitals, coroners, universities, and medical facilities with American-made mortuary coolers, embalming stations, cadaver lifts, and morgue refrigeration systems that deliver superior quality, reliability, and craftsmanship.
Our commitment to precision, performance, and service excellence has positioned us as a leader in professional mortuary equipment — trusted by thousands of facilities across all 50 U.S. states.
Extend the Power of Your Facility with the Industry Leader in Mortuary Design & Equipment
At American Mortuary Coolers, we go beyond equipment — we build seamless extensions of your funeral home, mortuary, or morgue. From state-of-the-art mortuary coolers to precision-engineered stretchers and embalming workstations, our products are designed to enhance efficiency, elevate professionalism, and expand your facility’s capabilities. Partner with the premier source trusted nationwide for craftsmanship, innovation, and design excellence.
Buy Mortuary Equipment from the Industry’s Most Trusted Source
As a proud division of www.MortuaryEquipment.com, we provide the highest-quality mortuary equipment built for performance, reliability, and long-term value. From professional-grade mortuary coolers and stretchers to embalming stations and body lifts, every product is engineered to meet the demanding standards of funeral homes, mortuaries, and medical examiners nationwide. When you buy mortuary equipment from us, you’re investing in American craftsmanship and design excellence backed by decades of industry leadership.
#1 Authority in Aquamation & Body Composting Equipment
As the leading authority inaquamation and body composting technology, we provide advanced cooling and ancillary systems engineered to support the future of eco-friendly death care. Our precision-built mortuary coolers, processing equipment, and facility design solutions are trusted by innovators and environmental leaders nationwide. When it comes to sustainable disposition systems,American Mortuary Coolersstands as the #1 source for reliability, performance, and expertise.


