15 Bay Vault Style Morgue Cooler – Model 1070-15MB
15 Bay Vault Style Morgue Cooler – Model 1070-15MB
High-Capacity Storage with Integrated Bariatric Solution
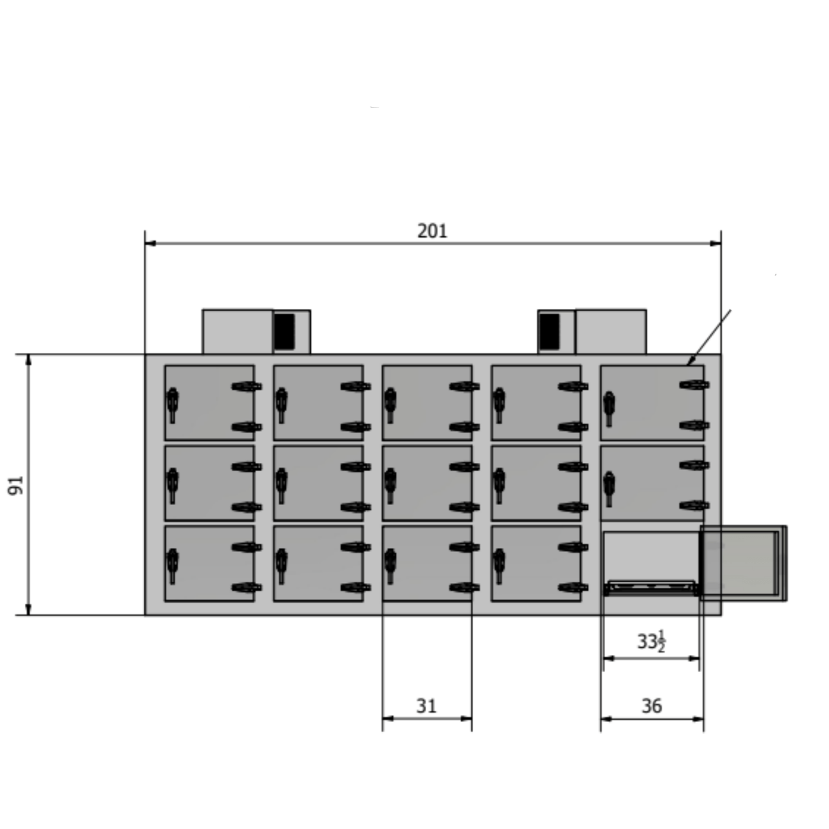
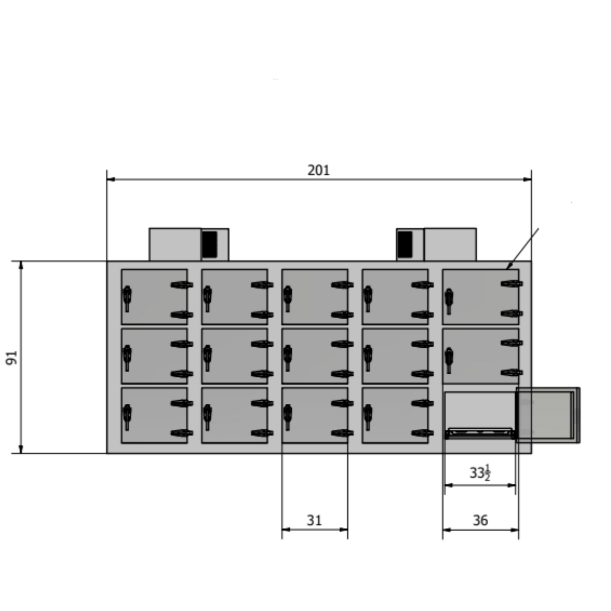
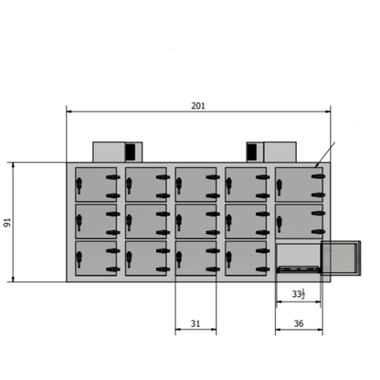
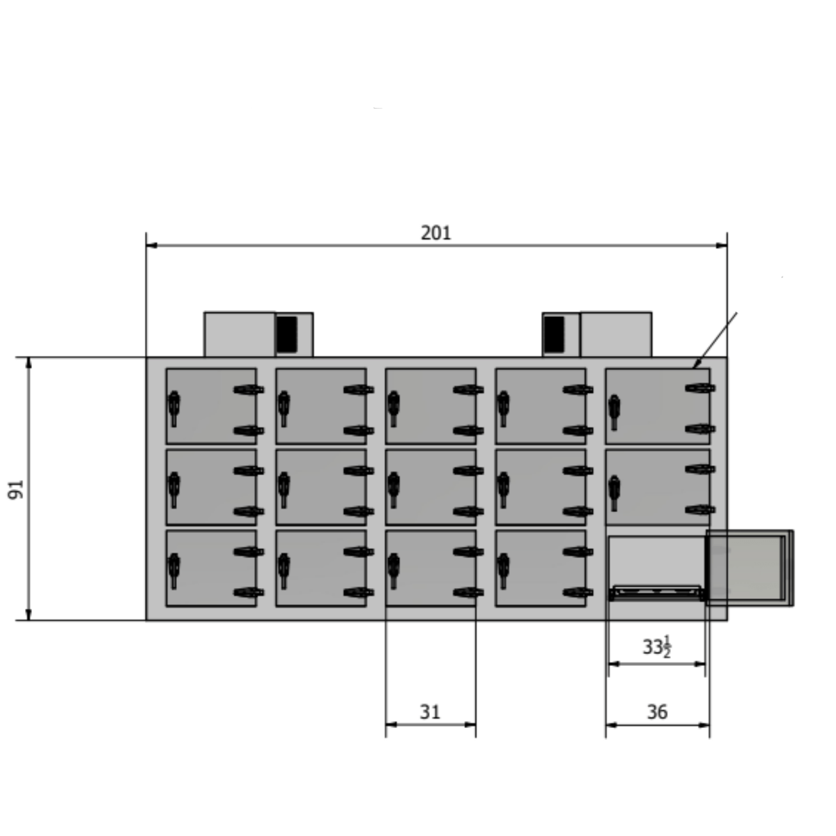
The 15 Bay Vault Style Morgue Cooler – Model 1070-15MB is a high-capacity refrigeration unit engineered for the demanding needs of large, high-volume facilities. This robust cooler features a dedicated Bariatric Column with a wider 30-inch stainless steel tray, providing a versatile solution for storing decedents of all sizes. The unit's self-contained condensing units and durable construction make it a reliable workhorse for busy hospital morgues, county medical examiners, and large funeral homes.
Proudly engineered and built in our Tennessee facility, this cooler is a comprehensive, turnkey solution for professional mortuary preservation.
Key Features
-
USA-Made Craftsmanship – Fully fabricated and assembled in Tennessee with a focus on durability and performance.
-
Integrated Bariatric Column – Features a dedicated, wider column designed to accommodate a 30-inch stainless steel body tray for bariatric cases.
-
Self-Contained Condensing Units – Powerful, 208/230V self-contained refrigeration systems are fully integrated for straightforward operation.
-
4” High-Density Urethane Insulation – Energy-efficient, foamed-in-place insulation ensures stable temperature control.
-
Stainless Steel Slide-Out Tray System – Each bay is equipped with a removable, stainless steel body tray on a telescopic, ball-bearing slide system for smooth and effortless access.
-
Secure Locking Doors – Fifteen individual, insulated doors feature heavy-duty locking handles and magnetic gaskets for a secure and perfect seal.
-
Digital Thermostat – An easy-to-read digital display ensures precise temperature management between 36°F and 40°F.
Technical Specifications
-
Model: 1070-15MB
-
Capacity: 15 Bodies (14 Standard, 1 Bariatric)
-
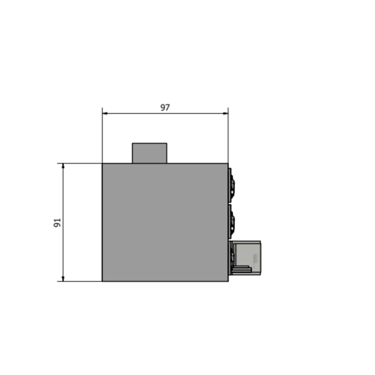
Exterior Dimensions: Approx. 334" W x 97" D x 99" H
-
Bariatric Body Tray Dimension: 30" Wide Stainless Steel Tray
-
Construction: Stainless Steel Exterior & Interior
-
Insulation: 4” Foamed-in-Place Urethane
-
Refrigeration: Self-Contained, 208/230V Condensing Units
-
Door System: Fifteen (15) individual locking doors
Delivery & Installation Options
Choose the delivery and assembly method that best fits your facility's needs.
-
Option 1: Standard Delivery (Customer Unload & Assembly) Your un-assembled, flat-packed cooler will be delivered to your facility's address via freight carrier. You are responsible for having a forklift and/or appropriate personnel to unload the shipment and move it inside. This option is ideal for customers with an experienced contractor or an in-house team to handle the complete assembly.
-
Price: Included in Base Price
-
-
Option 2: Premium On-Site Assembly Let our expert team handle the heavy lifting and assembly. This premium service includes unloading the shipment, moving it inside your space, and the complete on-site assembly of the cooler box, panels, and door. We ensure your unit is built to exact specifications, saving you time and labor. You will only need to arrange for a licensed professional to handle the final refrigeration and electrical connections.
-
Price: + $1,500
-
Perfect For
-
County Morgues & Medical Examiners
-
Large Hospital Systems
-
High-Volume Funeral Homes
-
University Anatomy & Pathology Labs
-
Regional Disaster Preparedness Centers
Industry-Leading Warranty
-
15-Year Structural Panel/Frame Warranty
-
5-Year Door Warranty
-
1-Year Parts & 90-Day Labor on Refrigeration System
Add Extended Warranty Coverage for Peace of Mind
Protect your investment with one of our Extended Care Plans — perfect for facilities where uptime is critical.
-
Option 1: No Extended Care – “We’ll Take the Risk” Included with every purchase. Enjoy the standard warranty coverage listed above. After the warranty period, all repairs are out-of-pocket.
-
Option 2: 1-Year Extended Warranty – Parts & Labor Add 12 full months of worry-free protection beyond the standard warranty. Covers mechanical breakdowns, labor, and refrigeration support.
-
Option 3: 2-Year Extended Warranty – Maximum Protection Get 2 full years of total coverage — our most popular plan. From diagnostics to repairs, we’ve got your back.
Add your plan at checkout or call us at 1-888-792-9315 to customize your protection.
Installation & Setup
-
Assembly: This unit ships un-assembled (flat-packed) unless Premium On-Site Assembly is selected.
-
Placement: Must be installed on a solid, level floor capable of supporting the unit's weight.
-
Electrical: Requires a 208/230V electrical connection. All electrical work should be verified by a licensed electrician.
-
Delivery: Freight delivery requires inspection for any potential shipping damage before signing the delivery receipt.
🚚 Delivery & Installation Options
Choose the level of service that best fits your facility's needs and capabilities.
Option 1: Standard Freight Delivery (Customer Installation)
Your equipment will be delivered to your facility's address via a freight carrier. It is the customer's full responsibility to have the necessary personnel and equipment (like a forklift) to unload the shipment, move it inside, and handle the complete assembly. You are responsible for hiring licensed professionals for the final refrigeration and electrical connections.
-
Price: Included in Base Price
Option 2: Turnkey Installation Service
Select our complete 'white-glove' service for a hassle-free experience. Our professional, Tennessee-based installation team will manage the entire process: unloading the shipment, full on-site assembly of the unit, and complete installation of the refrigeration system, including final power up. We hand you a fully operational, tested, and ready-to-use unit.
Note: This service may require a pre-installation site review to confirm access and electrical requirements. Please call us to discuss the details for your location.
-
Price: + $3,500.0
-
Phone: 1-888-792-9315
-
Email: cool@mymortuarycooler.com
American Mortuary Coolers – your trusted source for American-made mortuary equipment, embalming stations, and cadaver lifts. Proudly serving all 50 states with affordable financing, nationwide delivery, and white glove installation.
At American Mortuary Coolers, we make purchasing professional mortuary equipment simple and affordable with secure payment options and flexible financing programs available to facilities across all 50 states. Whether you’re investing in a mortuary cooler, embalming station, cadaver lift, or funeral home equipment, our goal is to make ownership accessible and hassle-free. We accept all major payment methods and partner with leading financial institutions to provide llow-interest financing and fast approval times— helping you upgrade your facility without financial strain.
Premium American-Made Mortuary Equipment – Built for Professionals, Shipped Nationwide
American Mortuary Coolersis the trusted nationwide manufacturer ofmortuary coolers, embalming stations, cadaver lifts, and funeral home equipment, allcrafted in the USAfor unmatched quality and performance. Each unit is built withheavy-duty stainless steel construction, engineered fordurability, sanitation, and reliabilityin every professional setting — fromfuneral homes and hospitals to medical examiners and universities. Withaffordable financing,white glove installation, andno forklift required delivery, our mortuary solutions are designed to make setup simple and service seamless. We proudly offernationwide shipping, ensuring every facility across all50 statesreceives the precision, craftsmanship, and value that defineAmerican Mortuary Coolers.

Best Price Guarantee on American-Made Mortuary Equipment
We guarantee the lowest prices on mortuary coolers, embalming tables, cadaver lifts, and funeral home equipment — all proudly made in the USA and shipped nationwide.
Over 16 Years in Business – Trusted American Mortuary Equipment Experts
20+ Years of Direct Industry Experience • Physical Showroom • Nationwide Service
With over 16 years in business and more than 20 years of direct mortuary industry experience, American Mortuary Coolers has earned a reputation as one of the nation’s most trusted mortuary equipment manufacturers and suppliers. We proudly serve funeral homes, hospitals, coroners, universities, and medical facilities with American-made mortuary coolers, embalming stations, cadaver lifts, and morgue refrigeration systems that deliver superior quality, reliability, and craftsmanship.
Our commitment to precision, performance, and service excellence has positioned us as a leader in professional mortuary equipment — trusted by thousands of facilities across all 50 U.S. states.
Extend the Power of Your Facility with the Industry Leader in Mortuary Design & Equipment
At American Mortuary Coolers, we go beyond equipment — we build seamless extensions of your funeral home, mortuary, or morgue. From state-of-the-art mortuary coolers to precision-engineered stretchers and embalming workstations, our products are designed to enhance efficiency, elevate professionalism, and expand your facility’s capabilities. Partner with the premier source trusted nationwide for craftsmanship, innovation, and design excellence.
Buy Mortuary Equipment from the Industry’s Most Trusted Source
As a proud division of www.MortuaryEquipment.com, we provide the highest-quality mortuary equipment built for performance, reliability, and long-term value. From professional-grade mortuary coolers and stretchers to embalming stations and body lifts, every product is engineered to meet the demanding standards of funeral homes, mortuaries, and medical examiners nationwide. When you buy mortuary equipment from us, you’re investing in American craftsmanship and design excellence backed by decades of industry leadership.
#1 Authority in Aquamation & Body Composting Equipment
As the leading authority inaquamation and body composting technology, we provide advanced cooling and ancillary systems engineered to support the future of eco-friendly death care. Our precision-built mortuary coolers, processing equipment, and facility design solutions are trusted by innovators and environmental leaders nationwide. When it comes to sustainable disposition systems,American Mortuary Coolersstands as the #1 source for reliability, performance, and expertise.


